| Prijs | € 4.175,- /mnd |
| Type object | Bedrijfshal |
| Perceeloppervlakte | 500 m² |
| Totale VVO | 440 m² |
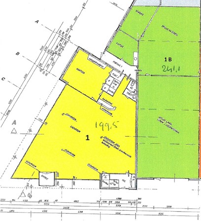
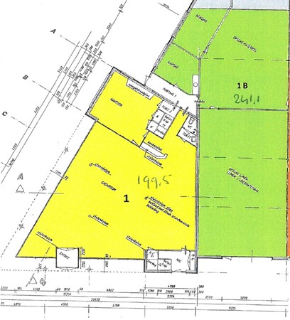
| In units vanaf | 241 m² |
| Aanvaarding | Per maandag 1 juni 2026 |
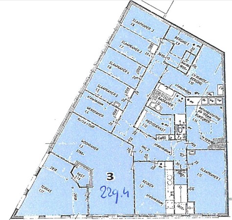
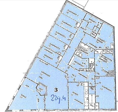
Te huur: Woon-bedrijfspand. Op een prominente locatie in de bebouwde kom van Zeewolde, op het Schepenveld, staat dit fraaie woon-bedrijfspand. Het bedrijfspand beschikt over een riante bedrijfshal, een showroom en kantoren (BVO van 440 m²) en op de 1e etage een bijzonder ruime bedrijfswoning van maar liefst 200 m² met dakterras. Dit is een uitstekende locatie om wonen en werken te combineren. Aan de voorkant bevinden zich parkeerplaatsen, en de bedrijfshal is toegankelijk via een overheaddeur. Zowel de showroom, de kantoren en de woning hebben elk een eigen ingang. Indeling: Dit is echt een ideaal pand. Je zit parallel aan de Sportlaan waardoor je hier maximale exposure hebt. Als jij hier je bedrijf vestigt weet binnen no-time half Zeewolde dat jij hier zit! Op de begane grond bevindt zich een nette entree met toegang tot de showroom, met daarachter een kantoorruimte en toiletgroep (ca. 199 m²). De bedrijfshal beschikt over een overheaddeur, een mooie hoogte en is voorzien van verwarming en verlichting etc. Aan de achterzijde zijn daarnaast nog eens twee kantoorruimten aanwezig (241 m²). 1e Verdieping: Op de etage bevindt zich een riante woning van (ca. 200 m²), bestaande uit de volgende ruimten: - 6 Slaapkamers - Woonkamer - Groot dakterras (29 m²) - Keuken - Bijkeuken - Toilet - provisiekast - Badkamer - Berging - waskamer Het is een ruime woning met veel natuurlijk licht en een fraai uitzicht over de omgeving, vooral vanaf het dakterras. Kenmerken: - Bouwjaar bedrijfspand: 1998 - Perceeloppervlakte: 500 m² - VVO ca.: 640 m² - Inhoud ca.: 2.060 m³ - Energielabel klasse: B - Het is mogelijk om ca. 8 auto's voor het pand te parkeren. Op de naastgelegen openbare weg kan gratis worden geparkeerd. - De huurprijs is € 4.175,- excl. BTW per maand. - Borgsom € 8.350,- - Huurperiode minimaal 3 jaar - Onder gunning van de eigenaar
| Referentienummer | 06194 |
| Huurprijs | € 4.175,- per maand |
| Borg | € 8.350,- |
| Inrichting | Ja |
| Inrichting | Gestoffeerd |
| Aanvaarding | Per maandag 1 juni 2026 |
| Aangeboden sinds | Donderdag 5 maart 2026 |
| Type object | Bedrijfshal |
| Soort bouw | Bestaande bouw |
| Bouwperiode | 1998 |
| Perceeloppervlakte | 500 m² |
| VVO | 241 m² |
| In units vanaf | 241 m² |
| Kantoor oppervlakte | 199 m² |
| Totale verhuurbare vloeroppervlakte | 440 m² |
| Vrije hoogte | 5 m. |
| Draagvermogen | 1.500 kg/m² |
| Lokale voorzieningen | Bank op 1500 meter tot 2000 meter Geldautomaat op 1000 meter tot 1500 meter Recreatie op 1500 meter tot 2000 meter Restaurant op 1500 meter tot 2000 meter Winkel binnen 500 meter Supermarkt binnen 500 meter |
| Bereikbaarheid | Bushalte op 500 meter tot 1000 meter |
| Energielabel | B |
| Aantal parkeerplaatsen | 8 |
| Aantal overdekte parkeerplaatsen | 2 |
| Uitrusting | Betonvloer Heater Krachtstroom Lichtstraten Overheaddeuren Pantry Toilet |
| Heeft een kantoor | Ja |