Beschrijving

Hiermee bieden wij jou de unieke kans om een compleet afgewerkte woning te huren op een ideale locatie. Dit huis is helemaal tiptop gereed gemaakt. Alles is tot in de puntjes afgewerkt zodat jij direct heel comfortabel kunt wonen. Dit betreft een hoekwoning met 3 slaapkamers, 8 zonnepanelen, een strak aangelegde tuin en een berging. Het huis staat vlakbij een supermarkt en de dijk met daarachter het strand.

Indeling

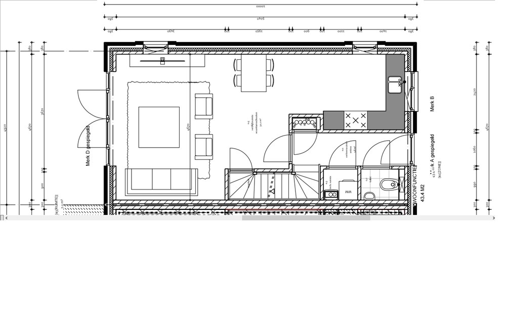
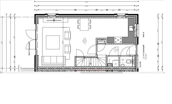
Aan de rand van de nieuwbouwwijk, de 1e woning op de Molengang, staat dit huis op jou te wachten. Aan de voorkant is een fietspad en achter het huis zijn de parkeerplaatsen. Via de strak aangelegde voortuin loop je naar binnen in deze fijne woning. Langs het toilet en de wasruimte kom je in de woonkamer. De woonkamer is voorzien van een PVC vloer met vloerverwarming, een praktische trapkast en de openslaande deuren zorgen voor een mooie verbinding met de tuin. Omdat deze woning op de hoek is gelegen en er 2 extra ramen zijn in de zijgevel komt hier veel licht naar binnen. De moderne keuken beschikt over een inductie kookplaat, een combi-stoomoven, een koelkast met vriesvak en een vaatwasser.

Eerste verdieping

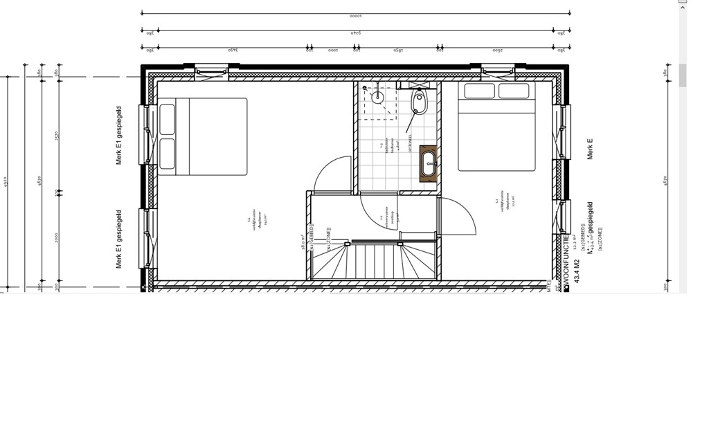
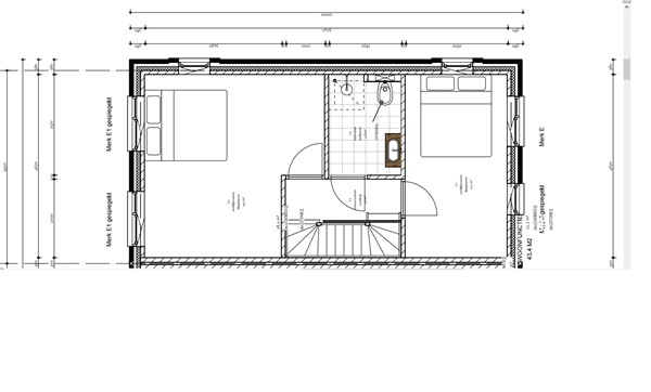
Ook op deze etage is alles keurig afgewerkt. Hier ligt ook een PVC vloer en vloerverwarming. Er zijn 3 slaapkamers en een badkamer. Alle 3 de slaapkamers hebben een eigen thermostaat. De badkamer is volledig betegeld en is voorzien van een inloopdouche, een wastafelmeubel, een vrijhangend closet en een designradiator.

Tuin

Zoals we in het begin al aangaven; je kunt hier zó in. Ook de tuin is volledig aangelegd en er is gekozen voor een onderhoudsarme tuin. Aan de voorzijde ligt er grind en tegels en aan de zijkant en in de achtertuin liggen ook mooie grote tegels. In de achtertuin is een houten berging en om de tuin heen is een haag aangeplant.

Bijzonderheden

–  Bouwjaar woning 2019
–  Woonoppervlakte ca. 85 m²
–  Inhoud woonhuis ca. 280 m³
–  Perceeloppervlakte is 168 m²
–  De woning is aangesloten op het stadsverwarmingsnetwerk.
– De woning is voorzien van 8 zonnepanelen, dus erg lage energiekosten
– Deze woning is bijzonder fraai gelegen vlakbij waterpartijen, het strand, parken, scholen en een supermarkt.
– De hele woning is gestuukt en geschilderd. Overal hangen gordijnen of plissé gordijnen en ook de verlichting is opgehangen.
– De gehele woning is voorzien van een PVC vloer en vloerverwarming.
– Huurprijs € 1.795,- per maand excl. stadsverwarming, elektra en water.
– Borgsom € 3.590,-
– Beschikbaar vanaf  3 februari 2026.
– Geen huisdieren toegestaan.
– Huurperiode 2 jaar.
– Verhuur bij gunning door eigenaar.

Kenmerken