Beschrijving

Midden in het centrum van Dronten staat een riant woon/winkelpand. Dit object heeft een aantal bijzondere eigenschappen, die we even op een rij zetten voor je:
- Op de begane grond een goed renderende winkel van ca. 388 m² (in verhuurde staat)
- Zeer ruim appartement (in verhuurde staat)
- Woonoppervlak 140 m²
- Dakterras 1e etage 70 m²
- Balkon 2e etage 9 m²
- Grote zolderverdieping (3e etage) met stahoogte (35 m²)
- Eigen ingang begane grond en privé garage
Het appartement heeft een beetje aandacht nodig maar leent zich eventueel uitstekend voor een splitsing in meerdere kleine appartementen.

Indeling:
Winkel: Midden in het oude deel van het centrum van Dronten ligt deze riante winkelruimte met een frontbreedte van ca. 7 meter. De winkel heeft een gemiddelde breedte van 8,4 meter en een diepte van ca. 50 meter. De winkel is verhuurd aan een Poolse Supermarkt met in de 1e helft de winkel en in de het achterste deel de kantine en het magazijn. Er is een achter uitgang waar je uitkomt op een parkeerterrein.
Appartement: Deze locatie biedt zoveel gemak en comfort. Met o.a. de Jumbo, de bakker en de slager om de hoek hoef jij je hier nooit te vervelen. Er is altijd wel wat te zien en de gezelligheid ligt hier aan je voeten. Je beschikt hier over een eigen garage die via de achterzijde bereikbaar is. Op de garage is een klein kantoor vanwaar je over het dakterras naar het appartement kunt lopen. Het appartement is ook bereikbaar via de winkelstraat. Daar is, naast de ingang van de Poolse Supermarkt, een eigen ingang met een trap naar boven. 

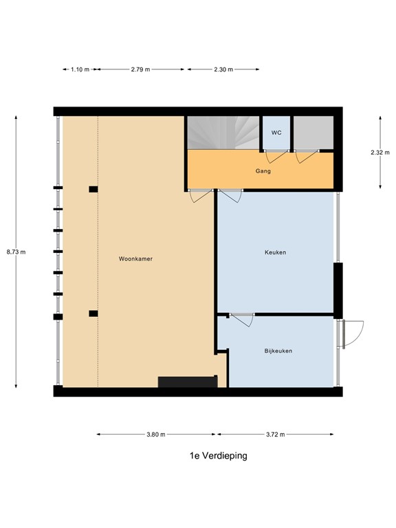
1e Verdieping:
Op de 1e etage is een woonkamer met gashaard, een dichte keuken, een bijkeuken, een toilet en een riant dakterras van ca. 70 m². 
Het appartement is in een gedateerde toestand en kan wel een opfrisbeurt gebruiken. Maar aan de andere kant biedt dit object echt mooie mogelijkheden. Waar vind je nu zoveel woonruimte, een garage én een enorm dakterras op zo’n centrale locatie?
Deze etage heeft een woonoppervlak van ca. 75 m².

2e Verdieping:
Op de 2e etage zijn 4 slaapkamers (voorheen drie), een badkamer en een balkon. Een van de slaapkamers beschikt over een kastenwand. De badkamer is voorzien van een inloopdouche, een wastafelmeubel, een vrijhangend closet en een designradiator. Het balkon van 9 m² geeft je een mooi overzicht over de winkelstraat.
Deze etage heeft een woonoppervlak van ca. 65 m².

3e Verdieping:
Via een vlizotrap kom je boven op de 3e etage. Dit is nog een riante ruimte met stahoogte; deze ruimte zou je eventueel kunnen transformeren naar een klein appartement of extra slaapkamers. Als hier een vaste trap zou zijn en voldoende daglichttoetreding zou je hier een woonoppervlak hebben van 35 m² wat natuurlijk nog extra te vergroten is door het plaatsen van dakkapellen. 

Kenmerken:
–  Bouwjaar: 1963
–  Woonoppervlakte ca. 140 m²
–  Garage ca. 27 m²
–  Dakterras 1e verdieping ca. 70 m²
–  Balkon 2e verdieping ca. 9 m²
–  Vliering 3e verdieping ca. 35 m²
–  Winkel ca. 388 m². Meer informatie over de huursituatie is beschikbaar via de verkopend makelaar. 
–  Inhoud ca. 1.830 m³
–  De Cv-ketel is van het merk Intergas met het bouwjaar 2023
–  Energielabel winkel klasse: D


Vraagprijs € 995.000,- k.k.

Kenmerken