Beschrijving
Heb jij meer ruimte nodig voor je onderneming en heb je behoefte aan een representatief pand waar je echt kunt opvallen met je bedrijf?
Dit vrijstaande bedrijfspand van 422 m² VVO biedt veel voordelen. Van binnen is er veel effectieve ruimte. Ook om het pand heen beschik je hier over je eigen buitenterrein. En het plekje is prachtig: Je zit hier aan de rand van het bedrijventerrein aan de bosrand!
Indeling
Hier kan je echt je eigen ding doen. Je hebt met niemand iets te maken en huurt een vrijstaand pand. Je hebt je eigen oprit en je eigen parkeerplaatsen!
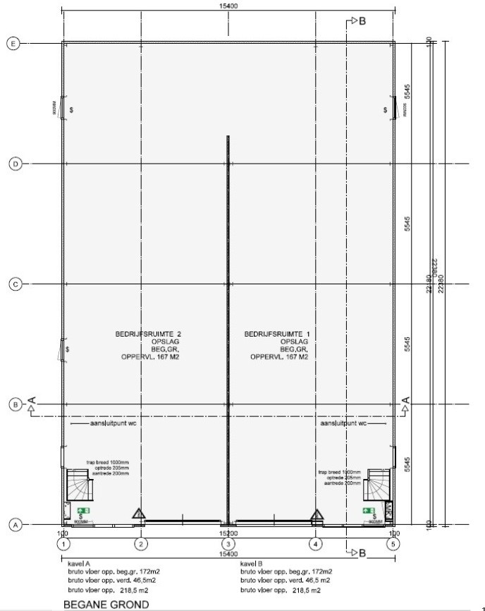
Op de begane grond is er een ruime hal van ca. 15 meter breed en ca. 22 meter diep en ca. 6,5 meter hoog. Dat is 330 m² aan vloeroppervlak! Een ideale hal voor bijvoorbeeld een werkplaats, opslag of showroom. Er zijn 2 overheaddeuren, een loopdeur en 2 trappen naar de 1e etage. De hoge glazen pui aan de voorzijde zorgt dat hier veel licht naar binnen komt. Onder de verdiepingsvloer is het plafond 3.7 m hoog.
Eerste verdieping
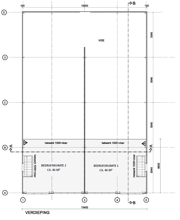
Op deze etage is een ruimte van 92 m². Omdat deze ruimte tegen de voorgevel is gelegen komt er op de 1e etage veel licht naar binnen. Dit is een ideale ruimte voor bijvoorbeeld een kantoor. Deze verdieping heeft een hoogte van circa 2,6 m.
Bijzonderheden
Locatie:
Dit unieke bedrijfspand ligt in Zeewolde op het bedrijventerrein Horsterparc.
Het bedrijventerrein Horsterparc is een bedrijventerrein met een parkachtige uitstraling. Samen met de ondernemers wil de gemeente Zeewolde ervoor zorgen dat Horsterparc haar parkachtige uitstraling behoudt. In opdracht van de gevestigde bedrijven regelt een parkmanager onder andere het beheer en onderhoud, de bewegwijzering en collectieve bedrijfsbeveiliging. Daarmee ís en blijft Horsterparc het paradepaard van Zeewolde.
Kenmerken:
Begane grond ca. 330 m²
Verdieping ca. 92 m²
Totale vloeroppervlakte ca. 422 m²
Grondoppervlakte 1.003 m²
Huurprijs € 2.930,- excl. BTW. per maand
Borgsom: € 6.000,-
Huurperiode 3 jaar
Gunning door eigenaar.