Beschrijving
Te huur: Woon-bedrijfspand.
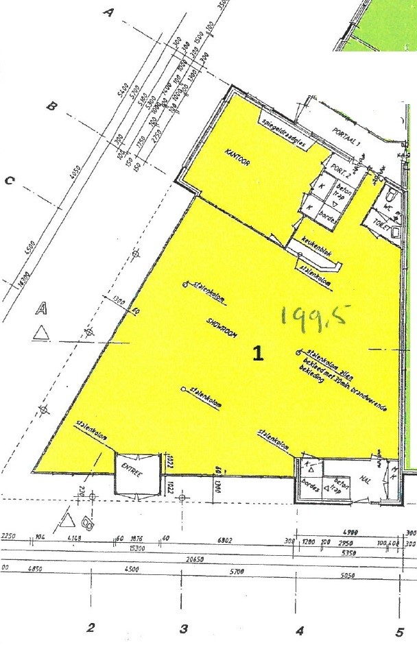
Op een prominente locatie in de bebouwde kom van Zeewolde, op het Schepenveld, staat dit fraaie woon-bedrijfspand. Het bedrijfspand beschikt over een showroom en kantoren (BVO van 199 m²) en op de 1e etage een bijzonder ruime bedrijfswoning van maar liefst 200 m² met dakterras. Dit is een uitstekende locatie om wonen en werken te combineren. Aan de voorkant bevinden zich parkeerplaatsen, en zowel de showroom, de kantoren als de woning hebben elk een eigen ingang.
Daarnaast is het eventueel mogelijk om een bedrijfshal van 241 m² erbij te huren.
Indeling:
Dit is echt een ideaal pand. Je zit parallel aan de Sportlaan waardoor je hier maximale exposure hebt. Als jij hier je bedrijf vestigt weet binnen no-time half Zeewolde dat jij hier zit!
Op de begane grond bevindt zich een nette entree met toegang tot de showroom, met daarachter een kantoorruimte en een toiletgroep (ca. 199 m²).
Ook een bedrijfshal nodig? Deze is direct naastgelegen en kan eenvoudig worden mee gehuurd.
De bedrijfshal beschikt over een overheaddeur, een prettige hoogte en is voorzien van verwarming en verlichting etc. Aan de achterzijde zijn daarnaast nog twee kantoorruimten aanwezig (ca. 241 m²).
1e Verdieping:
Op de etage bevindt zich een riante woning van circa 200 m², bestaande uit de volgende ruimten:
- 6 Slaapkamers
- Woonkamer
- Groot dakterras (29 m²)
- Keuken
- Bijkeuken
- Toilet
- provisiekast
- Badkamer
- Berging
- waskamer
Het is een ruime woning met veel natuurlijk licht en een fraai uitzicht over de omgeving, vooral vanaf het dakterras.
Kenmerken:
- Bouwjaar bedrijfspand: 1998
- Perceeloppervlakte: 250 m²
- VVO ca.: 399 m²
- Inhoud ca.: 1.325 m³
- Energielabel klasse: B
- Het is mogelijk om ca. 6 auto's voor het pand te parkeren. Op de naastgelegen openbare weg kan gratis worden geparkeerd.
- De huurprijs is € 2.892,- excl. BTW per maand.
- Borgsom € 5.800,-
- Huurperiode minimaal 3 jaar
- Onder gunning van de eigenaar