Beschrijving
Te huur: Woon-bedrijfspand.
Op een prominente locatie in de bebouwde kom van Zeewolde, op het Schepenveld, staat dit fraaie woon-bedrijfspand. Het bedrijfspand beschikt over een riante bedrijfshal, een showroom en kantoren (BVO van 440 m²) en op de 1e etage een bijzonder ruime bedrijfswoning van maar liefst 200 m² met dakterras. Dit is een uitstekende locatie om wonen en werken te combineren. Aan de voorkant bevinden zich parkeerplaatsen, en de bedrijfshal is toegankelijk via een overheaddeur. Zowel de showroom, de kantoren en de woning hebben elk een eigen ingang.
Indeling:
Dit is echt een ideaal pand. Je zit parallel aan de Sportlaan waardoor je hier maximale exposure hebt. Als jij hier je bedrijf vestigt weet binnen no-time half Zeewolde dat jij hier zit!
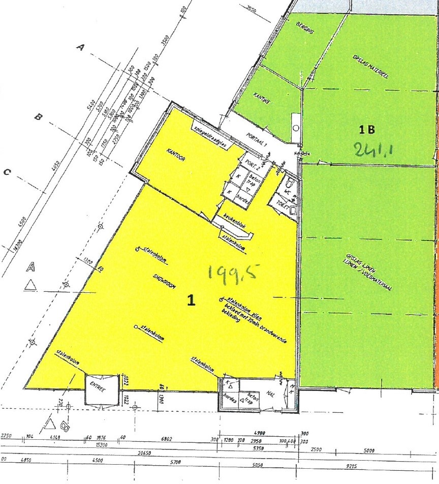
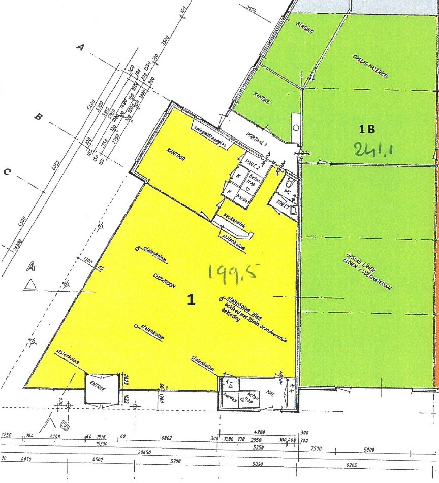
Op de begane grond bevindt zich een nette entree met toegang tot de showroom, met daarachter een kantoorruimte en toiletgroep (ca. 199 m²).
De bedrijfshal beschikt over een overheaddeur, een mooie hoogte en is voorzien van verwarming en verlichting etc. Aan de achterzijde zijn daarnaast nog eens twee kantoorruimten aanwezig (241 m²).
1e Verdieping:
Op de etage bevindt zich een riante woning van (ca. 200 m²), bestaande uit de volgende ruimten:
- 6 Slaapkamers
- Woonkamer
- Groot dakterras (29 m²)
- Keuken
- Bijkeuken
- Toilet
- provisiekast
- Badkamer
- Berging
- waskamer
Het is een ruime woning met veel natuurlijk licht en een fraai uitzicht over de omgeving, vooral vanaf het dakterras.
Kenmerken:
- Bouwjaar bedrijfspand: 1998
- Perceeloppervlakte: 500 m²
- VVO ca.: 640 m²
- Inhoud ca.: 2.060 m³
- Energielabel klasse: B
- Het is mogelijk om ca. 8 auto's voor het pand te parkeren. Op de naastgelegen openbare weg kan gratis worden geparkeerd.
- De huurprijs is € 4.175,- excl. BTW per maand.
- Borgsom € 8.350,-
- Huurperiode minimaal 3 jaar
- Onder gunning van de eigenaar